- 2023 Machbarkeitsstudie
- 2024 Bauantrag
- ab 2025 LPH 5-7
- ab 2026 LPH 8
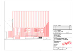
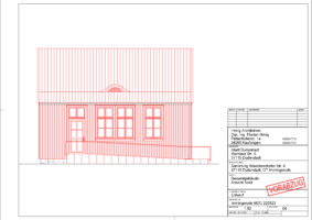
Das Mehrzweckgebäude in Immingerode ist eine alte Einraumschule, die mit der Kirche und dem Pfarrhaus zusammen einen Teil des historischen Ortskerns bildet.
Das Gebäude wird umfassend saniert. Die Außenwände und die Decken und Fußböden werden gedämmt. Die Kunststofffenster werden durch Holzfenster ersetzt und die Ölheizung wird durch eine Wärmepumpe ersetzt.
Unsere Leistungen:
- Schadensermittlung
- Entwurf/Kostenberechnung
- LPH 5-8
Auftraggeber: Stadt Duderstadt






